Marghita - Piață agroalimentară din fonduri europene
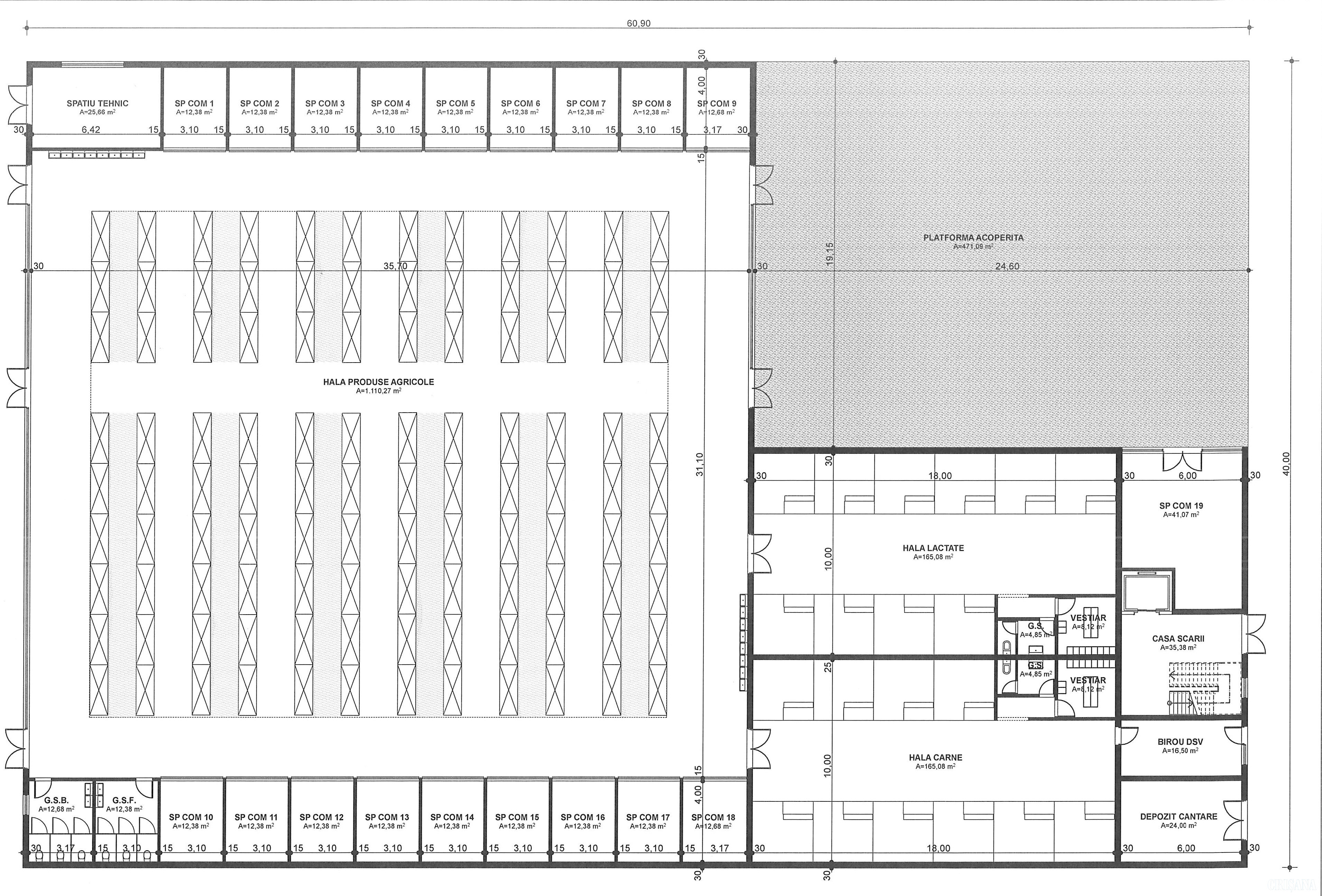
Municipiul Marghita va avea o piaţă agroalimentară nouă, investiţia urmând să fie realizată în cadrul unui proiect finanţat prin programul transfrontalier România-Ungaria. Piaţa va avea o suprafaţă de 2.435 mp şi va fi dotată cu spaţii moderne de comercializare a produselor.
În luna inuie a acestui an, primarul Marghitei, Pocsaly Zoltan, a semnat contractul de finanțare a proiectului „Promovarea unei abordări integrate privind îmbunătățirea ratei de ocupare a forței de muncă și a dezvoltării afacerilor la nivelul microregiunilor Marghita și Berettyóújfalu”, finanțat prin Programul Interreg V-A România-Ungaria. În prezent, proiectul se află în implementare, în faza de pregătire și derulare a achizițiilor publice.
„Proiectul a fost dezvoltat în parteneriat cu Municipiul Berettyóújfalu și are o valoare totală de 2.619.494 euro, din care 1.689.494 euro (aproape 65%) revin Municipiului Marghita. Contribuția financiară a Municipiului Marghita la acest proiect este de doar 2%”, a menţionat Demian Zsolt, consilier al primarului municipiului Marghita.
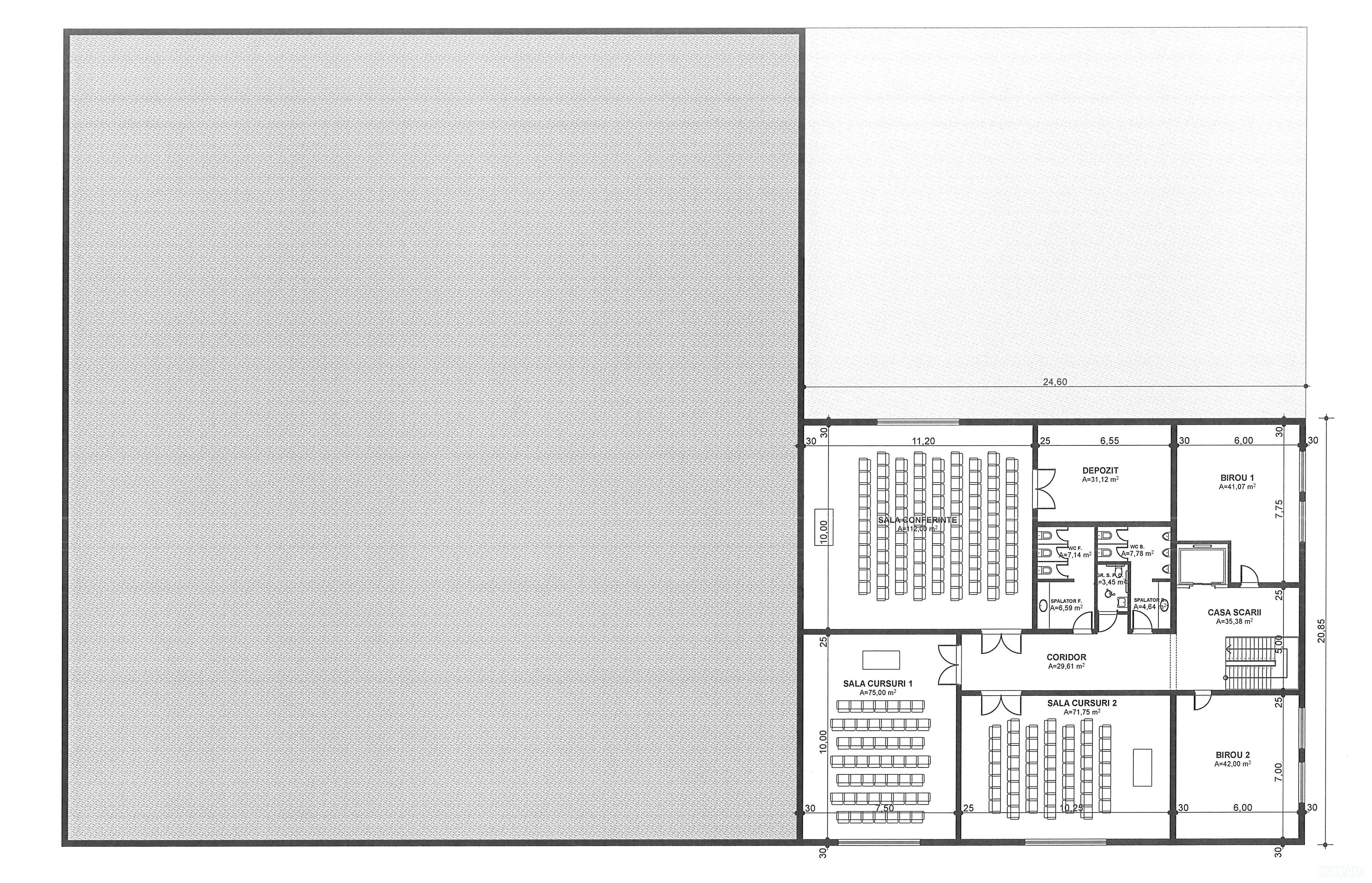
În cadrul proiectului, în Marghita va fi construit un „Centru de antreprenoriat și formare în domeniul agriculturii și produselor agricole” cu o suprafață utilă de 2.435 mp, dotat cu spații moderne de comercializare a produselor agricole (piață), dar și cu spații pentru formare profesională continuă. Lucrările vor începe anul viitor, după finalizarea procedurilor de achiziție publică.
Centrul va avea următoarele funcții: spațiu de comercializare modern și adecvat pentru producătorii locali (piață); centru de instruire pentru producătorii locali din diverse domenii cu privire la dezvoltarea afacerii lor (marketing, management etc.); infrastructură corespunzătoare pentru organizarea de ateliere de lucru și târguri pentru producătorii locali care lucrează în domeniul agriculturii și agroalimentar.
De asemenea, în cadrul proiectului va fi elaborată „Strategia comună de angajare și dezvoltare economica” și vor fi organizate trei târguri de locuri de muncă, programe de formare profesională continuă, precum și evenimentul Agri-Business Days. Sunt așteptați să participe la aceste evenimente peste 840 de persoane din Marghita și împrejurimi.



Comentarii
Nu există nici un comentariu.